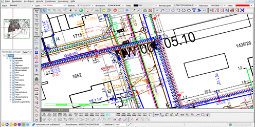
Voll netzwerkfähiges Programm zur Erfassung, Verwaltung, Darstellung, Auswertung und Ausgabe von Daten mit geographischem und/oder Objektbezug. Es bietet eine Vielzahl an Zeichen- und Bearbeitungs-funktionen, die umfangreich parametrierbar sind. Zu den Betriebsmitteln können Termine, digitale Dokumente und Bilder hinterlegt werden, die wie alle anderen Projektinformationen sowie deren Änderungen in der SQL-Datenbank gespeichert werden. Sie stehen jedem im Netzwerk angemeldeten Client in Abhängigkeit von dessen Lizenz und den Benutzerrechten zur Verfügung. Seit Kurzem ist auch die Verwaltung von LWL-Netzen in einer eigens hierfür entwickelten Fachschale (FS) verfügbar, die sowohl das Faserverbindungsmanagement beinhaltet als auch die Erstellung s.g. Faserreports gestattet.
Download der Beschreibung als PDF
